ESTATE
分譲住宅
新築売買一戸建 宮城野区幸町1丁目
3人家族にちょうどいいコンパクトで暮らしやすい22坪のお家です♪
| 所在地 | 宮城県仙台市宮城野区幸町1 |
|---|---|
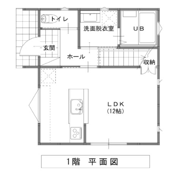
| 間取り | 3LDK |
| 学校区 | 幸町小学校、幸町中学校 |
- 土地・建物/販売価格
-
3,690(税込) 万円返済例 月々80,111円(税込)
頭金:0万・借入額:3,690万(借入金の内訳/毎月3,060万円・ボーナス時:630万)
毎月:80,111円/月・ボーナス時:99,064円/ボーナス時加算
※東邦銀行/年利0.55%・借入期間35年
間取り詳細
物件概要
| 間取り | 3LDK |
|---|---|
| 土地面積 | 121.1㎡(36.63坪)(登記) |
| 築年月(竣工月) | 2021年8月 |
| 建ぺい率/容積率 | 60%・200% |
| 接道状況 | 西4.1m幅(接道幅9.3m) |
| 用途地域 | 用途地域 |
| 設備 | 公営水道、本下水、オール電化 |
| 構造/階数 | 木造2階建(軸組工法) |
| 建物面積 | 74.01㎡(22.38坪) |
| 駐車場 | カースペース |
| 都市計画 | 1種住居 |
| 権利 | 所有権 |
| 制限 | 景観法による規制有、高度地区 |
備考
【宮城野区幸町一丁目】新築分譲住宅/分譲中/私道負担:無/総戸数:1戸/販売戸数:1戸/施工会社:(株)プライムリアルティ/建築確認番号:第R03確認建築宮城建住00626号/フラット35・S適合証明書/地盤調査済/省エネ給湯器/スーパー 徒歩10分以内/市街地が近い/システムキッチン/浴室乾燥機/陽当り良好/駅まで平坦/閑静な住宅地/整形地/対面式キッチン/セキュリティ充実/2階建/温水洗浄便座/TVモニタ付インターホン/緑豊かな住宅地/通風良好/全居室フローリング/IHクッキングヒーター/小学校 徒歩10分以内/平坦地/食器洗乾燥機/オール電化
周辺環境
幸町1丁目ってどんなところ?
-
仙台市立幸町小学校
480m(徒歩約6分)
-
仙台市立幸町中学校
120m(徒歩約2分)
-
イオン仙台幸町
990m(徒歩約12分)
-
ツルハドラッグ仙台二の森店
370m(徒歩約5分)
便利な立地!
| ダイシン幸町 | 840m(徒歩約11分) |
|---|---|
| 中江保育園 | 380m(徒歩約5分) |
| みやぎ幼稚園 | 340m(徒歩約4分) |
| 仙台中江病院 | 380m(徒歩約5分) |
| 仙台小松島郵便局 | 440m(徒歩約6分) |
| 七十七銀行幸町支店 | 480m(徒歩約6分) |
| 仙台銀行宮町支店 | 600m(徒歩約8分) |
| 小松島緑地 | 700m(徒歩約9分) |
交通
| 所在地 | 宮城県仙台市宮城野区幸町1 |
|---|---|
| 最寄駅 | JR仙山線 東照宮駅 徒歩8分 |
| 小学校区 | 仙台市立幸町小学校 |
| 中学校区 | 仙台市立幸町中学校 |
| 備考 |

![WISE[ウィズ]](https://primerealty.meldigital.jp/wp/wp-content/themes/newSite/img/page-parts/common/banner_wise.png)

